ET Wired Link Load Cell With Handheld Digital Indicator
Ideal for Cable Tension Monitoring & Under-Hook Crane Weighing Applied Measurements ET Wired Lift Link is a link load cell designed primarily for under-hook crane weighing and lifting gear weighing applications. In addition, it can be used as a load monitoring link for cable tension measurement and other in-line force or load measurement applications such a boat weighing. Our ET Wired link load cell is supplied as a calibrated system complete with our TRX handheld digital indicator and a 15-metre connecting cable. Applied Measurements ET Lift Link load cell system is supplied in a hard plastic carrying case as standard, and can optionally be supplied with either bow or ‘D’ shackles. For applications where a cable cannot be run between the link load cell and indicator, the wireless ET Telemetry Wireless Crane Scale is the ideal choice of measurement system. If your link load cell application requires special dimensions, a specific capacity, or even it it will be submerged, we can help. Please contact us using the enquiry form below, or call on +44 (0) 1189 817339 to discuss your application in detail.
Technical Specifications
| Range | tonnes | 0-1, 0-2, 0-5, 0-12, 0-25, 0-50, 0-100* |
|---|---|---|
| Operating Modes | Tension Only | |
| Accuracy | ±%/Rated Capacity | <±0.25% (<±0.3% above 100te) |
| Operating Temperature Range | ˚C | -10 to +50 |
| Safe Overload | % of Rated Capacity | 150 |
| Ultimate Overload | % of Rated Capacity | 500 |
| Safety Factor | 5:1 | |
| IP Rating (Environmental Protection) | IP65 | |
| Construction Material | Anodised Aluminium Alloy | |
| Connections | Locking Connector + 15m Cable | |
| *For capacities over 100t please contact sales | ||
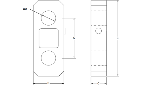
Product Dimensions

|
Capacity
|
A
|
B
|
C
|
ØD
|
E
|
Weight
|
|---|---|---|---|---|---|---|
|
1, 2, 5 t
|
108
|
105
|
40
|
Ø30
|
164
|
1.4kg
|
|
12 t
|
120
|
105
|
40
|
Ø38
|
210
|
1.9kg
|
|
25 t
|
131
|
124
|
55
|
Ø53
|
255
|
4kg
|
|
35 t
|
147
|
138
|
55
|
Ø60
|
305
|
5kg
|
|
50 t
|
170
|
150
|
75
|
Ø73
|
345
|
9kg
|
|
100t
|
228
|
220
|
123
|
Ø100
|
455
|
27kg
|
All dimensions are in mm
Ordering Codes & Options
| Core Product | Capacity + Engineering Units | Cable Length (m) | Specials Code | Example Result |
|---|---|---|---|---|
| ETW | 1t | 015 | 000 | ETW-1t-015-000 |
| ETW | 2t | 015 | 000 | ETW-2t-015-000 |
| ETW | 5t | 015 | 000 | ETW-5t-015-000 |
| ETW | 12t | 015 | 000 | ETW-12t-015-000 |
| ETW | 25t | 015 | 000 | ETW-25t-015-000 |
| ETW | 35t | 015 | 000 | ETW-35t-015-000 |
| ETW | 50t | 015 | 000 | ETW-50t-015-000 |
| ETW | 100t | 015 | 000 | ETW-100t-015-000 |

















